How Can We Help?

Please fill in the form below.

Available

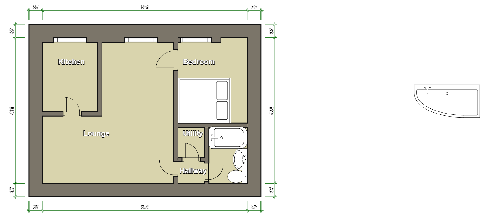
1 1 Studio

Features

Prime Location
Modern First-Floor Apartment
Spacious, Light-Filled Reception/Bedroom Area
Well-Designed Kitchen and Bathroom
Off-Street Parking
Communal Gardens
Close to Local Amenities & Transport Links
Chain Free
Perfect for Investors, First-Time Buyers & Airbnb Hosts

Summary

This super studio offers low-maintenance living with excellent access to transport, making it a smart purchase for personal use or investment.

Description

Discover this beautifully presented super studio apartment located on the first floor of the popular Chiswell Court development. Offered chain free and in great condition, this property is ideal for first-time buyers, investors, or those seeking a ready-made rental opportunity. The previous owner successfully operated it as an Airbnb, making it a fantastic option for short-term lets.

Situated in a prime location, the apartment is just a 7-minute walk to Watford Junction Station, providing fast links into London. It’s also within walking distance to a local gym, shops, and everyday amenities. The property is particularly attractive for contractors working at the Harry Potter Studios, and for commuters who value convenience and connectivity.

Gross Yield: 5.40%

Utilities, Rights, Easements & Risks

Utility Supplies
Electricity Ask Agent
Water Ask Agent
Heating Ask Agent
Broadband Ask Agent
Sewerage Ask Agent
Rights & Restrictions
Article 4 Area Ask Agent
Listed property Ask Agent
Restrictions Ask Agent
Required access Ask Agent
Rights of Way Ask Agent
Risks
Flooded in last 5 years Ask Agent
Flood defenses Ask Agent
Flood sources Ask Agent

Additional Details

Bedrooms: 1 Bedroom
Bathrooms: 1 Bathroom
Receptions: 1 Reception
Kitchens: 1 Kitchen
Parking Spaces: 1 Parking Space
Tenure: Leasehold
Lease Remaining: 95 years
Ground Rent: £160 / year
Council Tax: £2,081.01 / year
Council Tax Band: C

Additional Features

Chain Free
Investment Opportunity

Map

Street View

Floorplans

EPC Charts

Mobile Coverage

Indoor
Provider Voice Data 4G
EE
Three
O2
Vodafone
Estimated mobile coverage provided by Ofcom for this property's postcode.
Outdoor
Provider Voice Data 4G
EE
Three
O2
Vodafone
Estimated mobile coverage provided by Ofcom for this property's postcode.

How can we help? Drop us a line, we’d love to hear from you

Prive Homes - Enfield 02035762672